洛陽千島裝飾微信客服
掃描洛陽千島裝飾公司二維碼添加好友可贈送免費驗房服務、免費出方案
來源:http://m.czxinqidian.cn ?? 發布時間:2018-12-23 ?? 作者:洛陽千島裝飾公司
想要一直在洛陽發展,一直租房下去也不是辦法,住了幾年就搬家,對自己的工作和孩子的學習都不方便,這樣下去也不是辦法。買套房子也可以讓自己更好的穩定下來,至少也在洛陽城里有一個家。不管房子大小,找一家口碑好的洛陽裝修公司,只要用心的去裝修設計一下,一家三口,生活過的舒舒服服的,給大家曬幾張實景裝修照片吧。

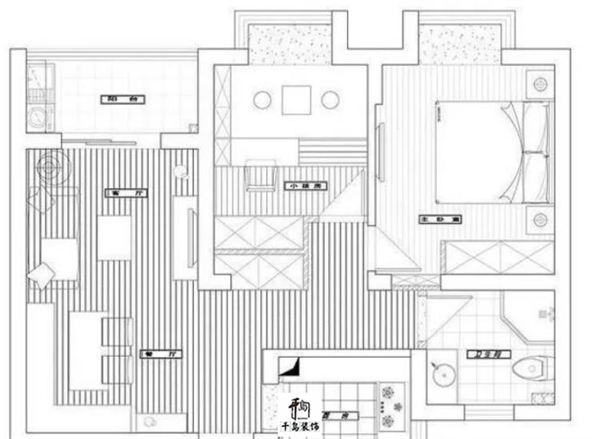
先看看戶型圖,入戶門進去左邊就是餐廳,右邊是廚房,里面是兩室兩廳的戶型,客廳有個大陽臺,主臥次臥都是飄窗,整體戶型還行。

小小的客廳,為了保持的更寬敞,買的茶幾只是一張小的白色橢圓小桌,買的深色兩座沙發,沙發墻鑲了一塊白色木板收納裝飾品,同時在沙發邊上也布置白色的置物架增加收納,沙發墻和電視墻都是貼墻紙裝飾的,整體空間效果會顯得更自然些。

整個大廳一分為二,分了一半的空間布置成餐廳,擺放方形原木餐桌,同事靠著墻面做了原木餐桌椅,更實用也可以坐的下更多的人,墻面掛這三幅畫冊增加自然舒適感,頂部掛著的吊燈營造空間氛圍。

小小的廚房空間布置成U型櫥柜,兩邊墻面再裝了兩個吊柜,增加收納功能能,右側還塞一臺大冰箱,收納功能杠杠的。

窗戶的采光很好,所以在中間窗戶用布簾遮擋了部分陽光,白天的太陽照射進來不會那么強烈。

兒童房,進門的左邊內嵌式的推拉移門大衣柜,進來就是榻榻米床,兼書柜和書桌。

榻榻米床的柜子,布置了16個格子柜,更好的劃分,讓收納更井然有序。

主臥室墻面和大床都是咖啡色調為主,這種顏色好看耐看,而且也耐臟,邊上附帶飄窗,拉了紗窗和粉色窗簾來遮光,營造不一樣的色彩效果。

進入衛生間要經過一個小小的過道,墻面都刷上暖色墻漆,右邊墻掛著生活照片和風景照,營造很自然的溫馨感。

進入衛生間前面就是干濕分離的淋浴區, 右邊是洗手臺,馬桶布置在熱水器的下面,墻面特意貼上了黑色格子磚,劃分非常清楚,衛生間收納還是蠻有創意的~
相關文章推薦:???